

ROMA
Via Andrea Meldola n.266 - Galleria Commerciale Arcobaleno
00143
L'abito per la tua nuova casa

Storia ed evoluzione della struttura...
Storico ed accogliente hotel, famoso negli anni ’80, meta di villeggiatura prettamente romana perché situato in località strategica ed adiacente alle principali attrattive della zona e nei pressi della capitale, la struttura è in fase di un completo e innovativo restyling (remodelling project). Al termine della ristrutturazione, considerate le innovazioni dell’intero stabile, la struttura si collocherà tra i migliori hotel del Lazio, posizionandosi sulla fascia di un potenziale 5 stelle.

"Progettare un hotel a Monte Livata significa dare forma ai sogni degli ospiti, avvolgendoli in un abbraccio architettonico che fonde eleganza e funzionalità con il paesaggio mozzafiato che ci circonda. Ogni linea e dettaglio racconta una storia di comfort e bellezza, trasformando l'esperienza di soggiorno in un viaggio indimenticabile."
Arch. Giovanna Santoro - Direttore artistico
Il progetto del nuovo Hotel Livata Resort & Spa prevede al piano terra un ampio ambiente centrale con la reception, fulcro della distribuzione dei vari spazi; l'ingresso dall'esterno, considerate le temperature invernali, verrà gestito da una porta circolare automatizzata in posizione prevalente rispetto al prospetto principale.
Adiacente alla sala comune si trova un ampio bar dal quale si potrà accedere ad una zona privè destinata alla degustazione di vini, che si sviluppa in due salette, una al piano terra ed una al piano -1, rifinite con pietre locali e legno per ricreare ambienti riservati.
Elemento dominante della progettazione del piano terra è sicuramente la Spa pubblica con accesso diretto dall'ascensore per gli ospiti dell'hotel ed eventualmente anche dall'esterno, considerata la presenza di una reception dedicata.
Sarà presente una piscina dalle forme particolari e morbide con postazioni idromassaggio e cascate di acqua, una macchina del ghiaccio, un bagno turco, una sauna, un tunnel emozionale con percorso kneipp oltre che una zona privè con piscina cardio, bagno turco privato e area relax.
Oltre agli ambienti Spa è stata anche prevista una zona dedicata al centro benessere in cui troviamo sale per massaggi, una sala per il medico, la coiffure, oltre ad uno spazio giochi per bambini ed un'area fitness. Un altro ambiente ampio che caratterizzata il piano terra è la sala multifunzione, accessibile anche dall'esterno, ed adiacente ad una antica cappella accuratamente restaurata.
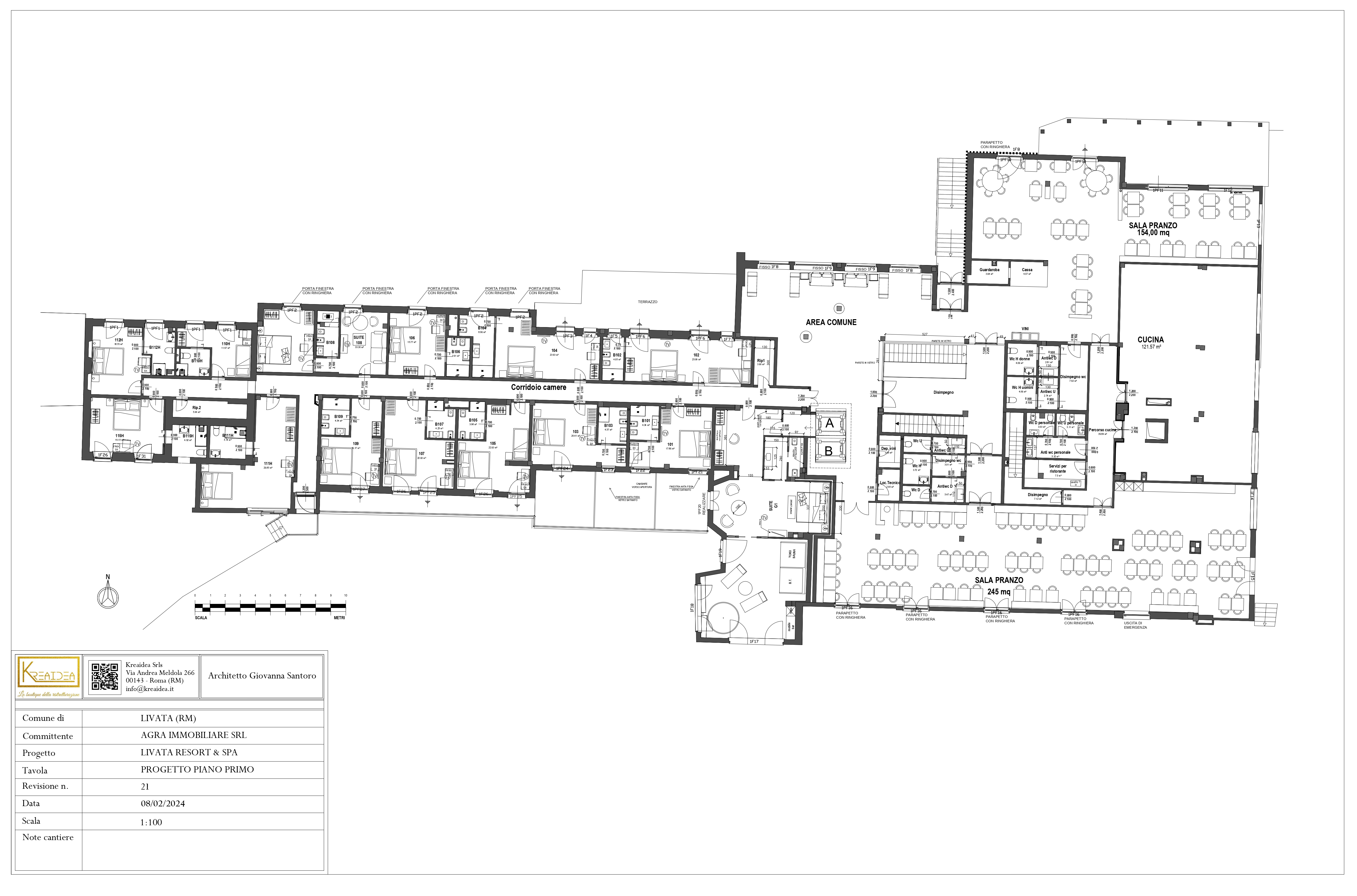
Al piano primo oltre ad alcune delle camere dell'hotel, si potranno trovare due ristoranti.




Il piano terzo ospita 19 stanze, di cui 5 suite e 14 camere standard.
Il piano primo ospita 14 stanze, di cui 1 suite, 4 junior suite, 4 camere standard e altrettante camere standard predisposte in maniera flessibile all'accoglienza dei disabili, che potranno godere di comfort ed allo stesso tempo vivere uno spazio di design per un soggiorno in totale relax. Completa il progetto la realizzazione di una Suite Spa G1 con uno spazio relax privato con sauna bagno turco e vasca idromassaggio. E' stata posizionata nella zona più panoramica della struttura, dal quale si può ammirare una vista mozzafiato che cattura l'essenza della bellezza naturale di Monte Livata. La suite G1 ha accesso diretto in ascensore alla Spa pubblica per garantire un soggiorno di completa privacy e relax.
Il piano terra ospita una doppia reception, da una parte dedicata all'accoglienza degli ospiti dall'altra riservata agli accesso della spa pubblica. Troviamo inoltre, come già citato, una sala multifunzione collegata ad una cappella, oggetto di restauro, e un bar con tavoli e sedute dal quale è possibile accedere ad un'area degustazione con vista panoramica.
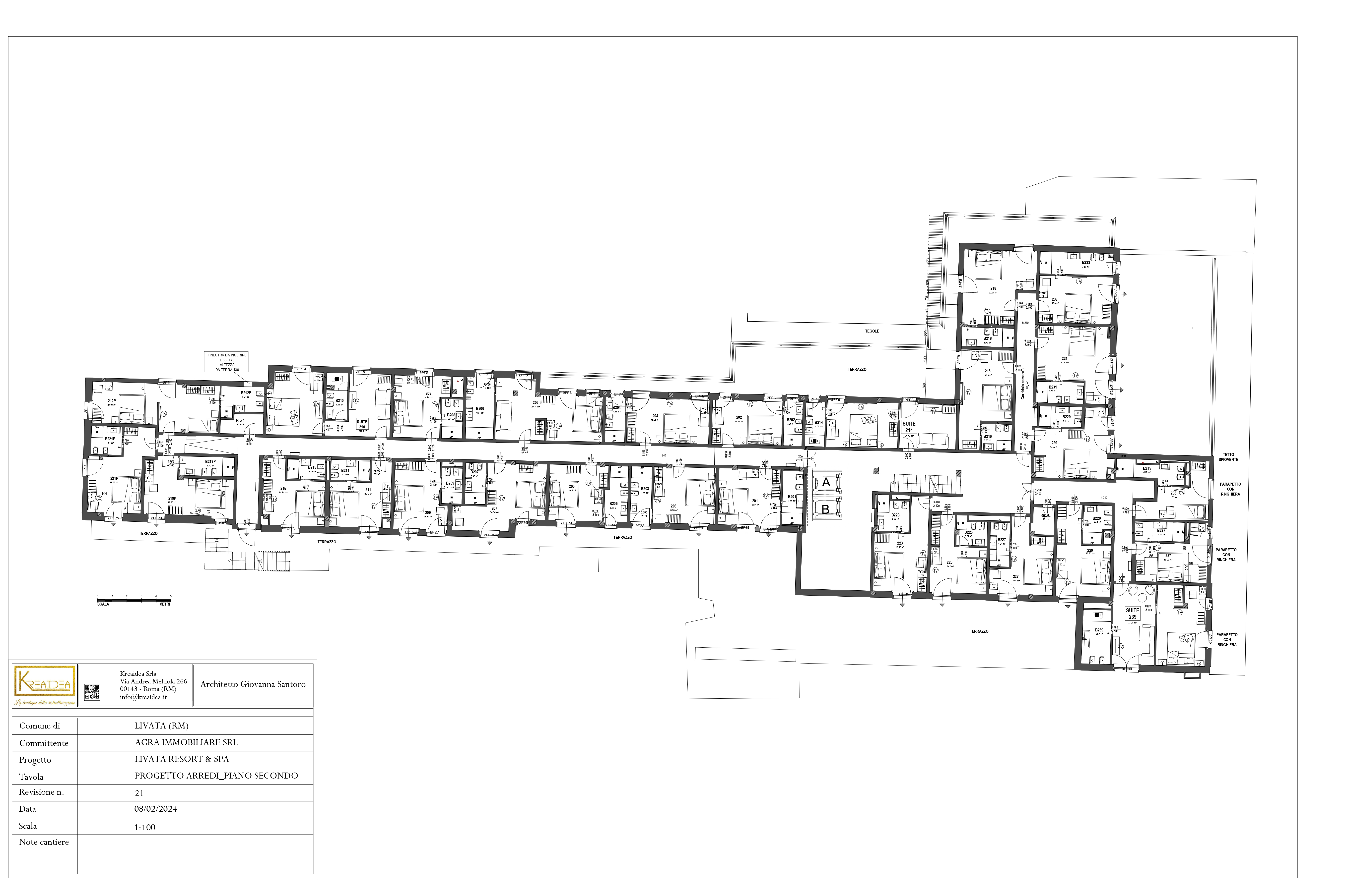
Il piano secondo ospita 27 stanze , di cui 3 suite e 24 camere standard.
Il Nuovo Hotel Livata Resort & Spa, sorge in una posizione ottimale, dominando tutto il paesaggio circostante.
Dispone di 36 camere standard, 4 camere per diversamente abili, 11 junior suite, 5 suite, 4 suite Spa ed una Suite G1 Total Lux Private Spa con accesso diretto dall'ascensore, zona relax privata con sauna, bagno turco e minipiscina con idromassaggio.
La struttura ospiterà un totale di 148 posti letto, divisi per le varie tipologie di camere.
Tutte le camere disporranno del massimo confort:
- frigo bar
- cassetta di sicurezza
- tv satellitare
- connessione internet
- riscaldamento ed aria condizionata
- Arredamento realizzato su misura, personalizzando ogni ambiente.


Le nostre Suite sono un rifugio di lusso e comfort, dove lo spazio si trasforma in un'esperienza unica. Coniugando eleganza e praticità, vi inviteremo ad immergervi in un mondo di raffinatezza, godendo di viste panoramiche mozzafiato sul Monte Livata. Vivrete un soggiorno straordinario, dove il design esclusivo si unisce al piacere di sentirsi a casa lontano da casa.
Nella nostra camera standard, il comfort si fonde con l'eleganza, creando uno spazio accogliente e raffinato dove ogni dettaglio è pensato per rendere il soggiorno degli ospiti un'esperienza indimenticabile. Alcune camere
La Suite Spa G1 Total Lux Private Spa è un'ode al lusso e all'esclusività. Ogni dettaglio è curato con precisione artistica per offrirti un'esperienza senza pari. Le ampie vetrate regalano una vista mozzafiato su Monte Livata, mentre gli spazi interni sono un mix di eleganza contemporanea e dettagli raffinati. L'arredamento lussuoso realizzato su misura dai nostri artigiani, si fonde armoniosamente con comfort su misura, creando un rifugio privato dove ogni momento diventa un'opportunità di godere della bellezza e del lusso ineguagliabile. Nella zona Private Spa è presente una sauna e bagno turco oltre che una mini piscina con idromassaggio.
All'hotel Livata Resort&Spa sarà possibile degustare pasti in due ristorante collocati al piano primo, uno con buffet e servizio al tavolo l'altro con possibilità di scelta delle portate "a la cartè".




Nel ristorante alla carta invece sarà possibile consumare pasti con portate a propria scelta con servizio al tavolo, in un ambiente caratterizzato da semplicità, calore ed eleganza. E' presente in continuità con questo spazio anche una terrazza in cui, nelle stagioni calde, sarà possibile godere del meraviglioso panorama sulle montagne. L'accesso al Ristorante oltre che dall'interno della struttura è garantito da una scalinata esterna.
Nel ristorante principale sarà possibile consumare pasti sia con servizio al tavolo che a buffet. Questo spazio sarà sempre attivo per ogni richiesta e offrirà diverse pietanze a seconda dell'orario della giornata.
Nella nostra esclusiva Spa pubblica troverete i seguenti servizi wellness:
- piscina interna
- tunnel emozionale con percorso kneipp
-bagno turco
- sauna
- ice machine
- stanza del sale
- area relax e tisaneria
- zona privè con piscina cardio
- zona fitness
- zona massaggi

ROMA
Via Andrea Meldola n.266 - Galleria Commerciale Arcobaleno
00143
L'abito per la tua nuova casa